STRONG ON SPECS, SPACE, AND SURROUNDING NEIGHBOURS.

Sold - 12/1866 Dandenong Road, Clayton

Industrial

Sale Details

Sold on 13 Feb 2026 for $1,426,000

Building Area 407m²
Rate $3,504 per m²

Overview

Sale History ID: 42485
Property ID: 21193
Advertised Price: Contact Agent

Description

POINT OF INTEREST:

Where the big names do business, and your business name is billboarded on bold — this is a rare chance to pair industrial performance with retail-level amenity, right in the heart of Clayton.

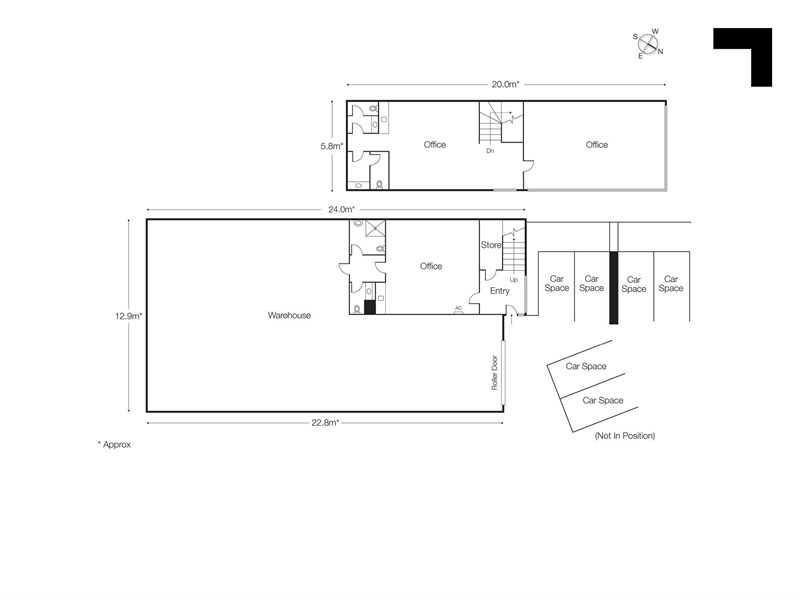
Surrounded by Nando’s, Petbarn, Fernwood Fitness and Timezone, this high-performing office/warehouse in the tightly held WARECA Business Park brings both presence and practicality to one of Melbourne’s most connected corridors. Freshly refurbished and offered with vacant possession, the 407 sqm* building combines high-clearance warehousing with a dual-level, air-conditioned office/showroom and 6 on-title car spaces — two undercover. A container-height roller door provides direct access for loading, while flexible layouts give room to evolve. With Industrial 1 zoning, proximity to Princes Highway, Dandenong Road and the M1, plus lifestyle amenity at M-City and Monash University just minutes away, this is an address for operators who want both convenience and credibility.

- Positioned within the tightly held WARECA Business Park.
- 407 sqm* total building area, including 150 sqm* of dual level office.
- 6 on-site car spaces with 2 undercover.
- Kitchenette & Male/Female bathroom amenities on both floors.
- Industrial 1 zoning.
- Surrounded by Petbarn, Nando’s, Fernwood Fitness, and Timezone.
- Opposite M-City Shopping Centre (Kmart, Woolworths, Village Cinemas and Food Court/Cafes).
- 1.2 km* to Monash University and Victorian Heart Hospital.
- 2.9 km* to the Monash Fwy.

POINT OF VIEW:

All the function, all the access — none of the over-inflated price tag. The location of this strategic warehouse is so boutique and tasteful, even the fast food here is Nando's.

*Approx.
Pricing excludes GST

Additional Info
Features
Air ConditionerYes - in office areas
AvailabilityImmediate
Car Parking FeesN/A
Car Spaces6
ConditionRecently redecorated
FloorsConcrete and carpet
Height7.5 m*
Roller DoorsYes - container height
Wheel Chair AccessYes - to ground floor only
ZoningIndustrial 1 Zone
Outgoings
Owners’ Corporation$6,567 p.a.* (2025)
Council Rates$3,269 p.a.* (2025)
Water Rates$1,221 p.a.* (2025)
Land Tax$975 p.a.* (2025 - Single Holding)
Agent Details
CVA Property Consultants - Tim Cooney

Tim Cooney

M | 0468 860 737
T | (03) 9623 2582
E | [email protected]

CVA Property Consultants - Jordan Carroll

Jordan Carroll

M | 0467 628 951
T | (03) 9623 2580
E | [email protected]