THE SIGN OF A BUNDOORA FREEHOLD UNICORN.

Private Sale by Closing Date – Vacant Possession - 21 Clements Avenue, Bundoora

Industrial

Overview
Property ID: 21190
Price: Contact Agent
Building: 533m²
Land: 929m²
Zoning: IN3Z - Industrial 3 Zone
Closing
12/11/2025 03:00 PM
Add to Calendar 12/11/2025 03:00 PM 12/11/2025 03:00 PM Australia/Melbourne Private Sale by Closing Date – Vacant Possession - 21 Clements Avenue, Bundoora THE SIGN OF A BUNDOORA FREEHOLD UNICORN. Jarrod Moran [email protected] false DD/MM/YYYY akKqZLDfczNDwEvbmmHA24960
Attachments
Description

Private Sale by Closing Date: Wednesday 12th November 2025 at 3pm unless sold prior.

Open for inspection: Thursday 23rd October 2025 at 12pm - 12:30pm. All attendees must register prior.

POINT OF INTEREST:

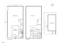
For owner-occupiers who’ve built their reputation and are ready to build equity, this is where ownership meets serious opportunity — investors, that means you, too. At 21 Clements, you’re looking at a 929 sqm* landholding with a 533 sqm* facility that’s as versatile as it is valuable. Inside, the clear-span warehouse (355 sqm*) comes with front and side roller door access — perfect for smooth vehicle flow and loading — while the 178 sqm* office (split over two levels) keeps operations sharp and climate-controlled. Step outside and you’ve got what most northern operators dream about: a secure side yard, hardstand, and space to park, store or load, plus 6 allocated car parks. With a 20KW solar system cutting the bills and seamless access to Melbourne’s northern arterials cutting the commute, this freehold sets up perfectly for engineering, construction, manufacturing, or logistics groups who know how hard it is to get into Bundoora’s tightly held industrial scene.

- 929 sqm* total land area.
- 533 sqm* total building area.
- Incl. 355 sqm* clear span warehouse
- Incl. 178 sqm* two level office space.
- Additional mezzanine storage area.
- 6 allocated on-site car spaces with gated entry.
- Ample hardstand with front and side roller door access.
- 20KW high-powered solar + 3 phase 63 Amps power.
- 1.4 km* to the M80.
- 1.3 km* to Plenty Road.

POINT OF VIEW:

With power to amplify, access from both sides, and a secure yard that doubles your options, this property keeps your operation running faster than the CityLink at 3am.


*Approx.
Pricing excludes GST

Additional Info
Features
AgeCirca 1990
Air ConditionerYes
AvailabilityAt settlement
Car Parking FeesN/A
Car Spaces6
ConditionVery good
FloorsConcrete/carpet
Height6.3 meters approx.
LiftsN/A
Roller DoorsYes - 2 motorised
SprinklersN/A
Wheel Chair AccessN/A
ZoningIN3Z - Industrial 3 Zone
Outgoings
Owners’ CorporationN/A
Building Insurance$2,200 p.a approx. (2025)
Council Rates$5,508 p.a approx. (2025)
Water Rates$1,275 p.a approx. (2025)
Land Tax$3,930 p.a approx. (2025) (Single Holding)
Essential Safety MeasuresTBA
A/C MaintenanceTBA
Agent Details
CVA Property Consultants - Jarrod Moran

Jarrod Moran

M | 0413 251 621
T | (03) 9623 2589
E | [email protected]

CVA Property Consultants - Anthony Comand

Anthony Comand

M | 0408 486 335
T | (03) 9623 2564
E | [email protected]

Ask About The Property
Send